Gewerbeflächen im
agra Messepark Leipzig

Der agra Messepark Leipzig ist nicht nur ein beliebter Standort für Veranstaltungen, Messen und Märkte, sondern auch ein vielseitiger Gewerbestandort im Leipziger Süden. Auf dem weitläufigen Gelände befinden sich etliche Gewerbeeinheiten – darunter Lagerhallen, Büros und Werkstätten –, die unterschiedlichste Nutzungsmöglichkeiten bieten.

Ob Lager, Produktion, Handwerk oder Büro: Ab und an werden Mieteinheiten frei, die flexibel und bedarfsgerecht angemietet werden können. Profitieren Sie von der guten Erreichbarkeit, der großzügigen Infrastruktur und der lebendigen Umgebung dieses traditionsreichen Standorts.

Attraktive Bürofläche mit ca. 180qm in Halle 2

Anfragen / Rückfragen

Nutzen Sie die Chance auf eine inspirierende Arbeitsumgebung im Grünen mit idealer Erreichbarkeit. Kontaktieren Sie uns für weitere Informationen oder zur Vereinbarung eines Besichtigungstermins.

Fläche

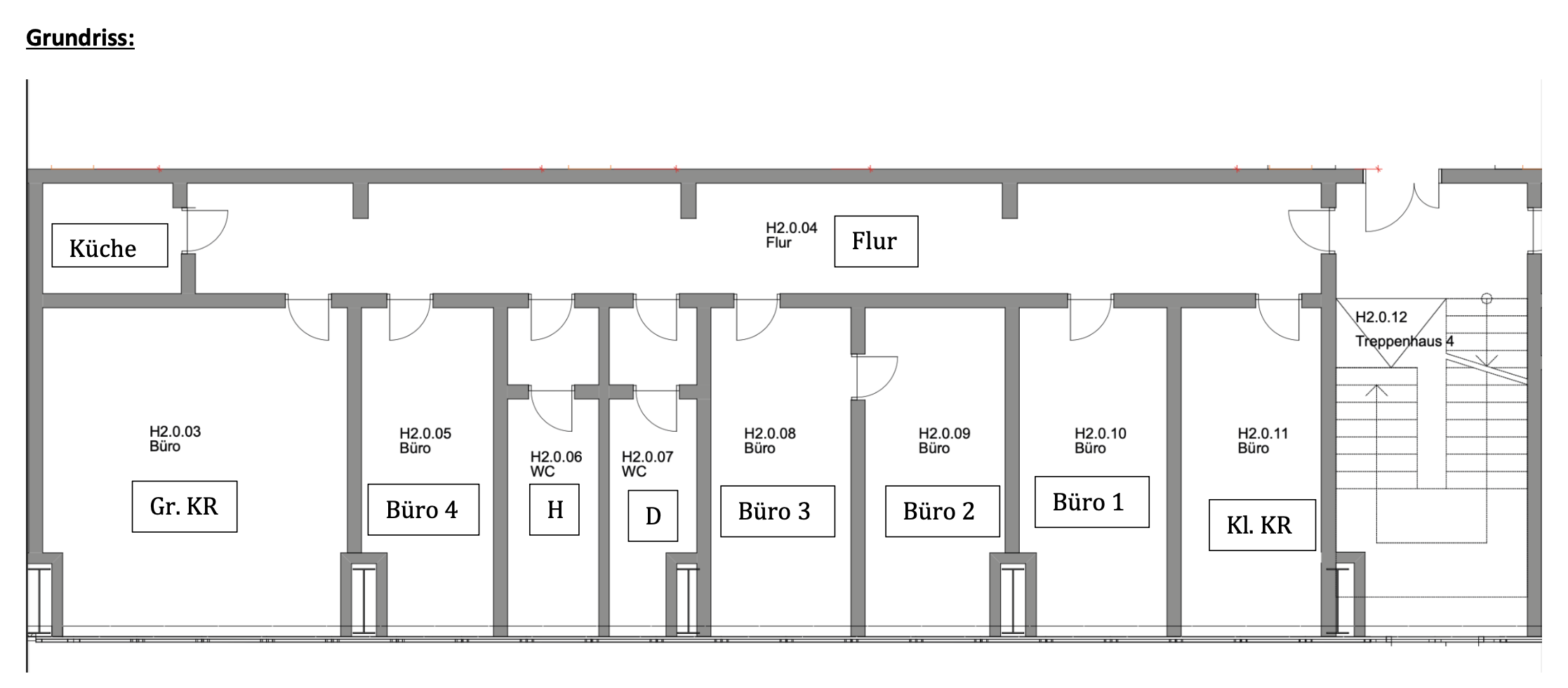
179,6 m² Bürofläche mit flexibler Raumaufteilung.
Derzeit aufgeteilt in 5 separate Büro-Räume, 1 großer Konferenzraum, WCs, Küche.

Ausstattung

repräsentativer Eingangsbereich und Foyer

helle Büroräume mit Blick ins Grüne
ausreichend Parkmöglichkeiten auf dem Gelände

Anschlüsse

Strom- und Wasseranschlüsse vorhanden, Abrechnung nach Verbrauch quartalsweise
Highspeed-Internetanschluss via Glasfaser

Konditionen

Nettokaltmiete: 6,50 €/m² = 1.167,40 €/Monat
Betriebskosten: 2,50 €/m² = 449,00 €/Monat
Gesamtmiete (Warmmiete): 1.616,40 €/Monat (zzgl. Strom und Wasser nach Verbrauch)
Bezug: ab sofort

Im Bürokomplex an Halle 2 im agra Messepark Leipzig steht eine moderne Büroeinheit mit 179,6 m² zur Vermietung. Die Fläche überzeugt durch eine funktionale Raumaufteilung mit mehreren großzügigen Büroräumen, einem zentralen Foyer, einer Küche sowie eigenen Sanitäranlagen. Große Fenster sorgen für eine angenehme Arbeitsatmosphäre mit viel Tageslicht.

Der agra Messepark bietet nicht nur ein ruhiges, parkähnliches Umfeld, sondern ist auch ein etabliertes Gewerbeareal mit historischem Charme und vielfältiger Branchennutzung. Die verkehrsgünstige Lage im Leipziger Süden ermöglicht eine schnelle Anbindung an die B2, B95 sowie die A38. Auch mit öffentlichen Verkehrsmitteln ist der Standort bequem erreichbar.